Oportunidad analizada: Abril 2025
3 Viviendas Obra Nueva
Precio desde
Rentabilidad bruta estimada
Entrega
Inmediata

Cambio de uso de local comercial a 3 viviendas en la zona con mayor rentabilidad de Murcia
RESUMEN DEL PROYECTO
Transformación de activo infrautilizado en producto residencial de alta rotación en alquiler, con enfoque patrimonial y control de riesgo
Se trata de un cambio de uso de local comercial a 3 viviendas tipo estudio en el Barrio del Carmen (Murcia), una zona con alta demanda de alquiler y buena liquidez de salida.
La operación se plantea como inversión patrimonial: tres unidades independientes con superficies optimizadas y distribución eficiente, orientadas a maximizar la rentabilidad en alquiler.
Nuut Project ha analizado el activo con criterios financieros (coste total, ingresos esperados y escenarios de riesgo) para priorizar una decisión informada y transparente.
| Características | Detalles |
|---|---|
| Tipología | Cambio de uso de local comercial a 3 viviendas tipo estudio |
| Ubicación | Barrio del Carmen, Murcia |
| Número de unidades | 3 viviendas independientes (A, B y C) |
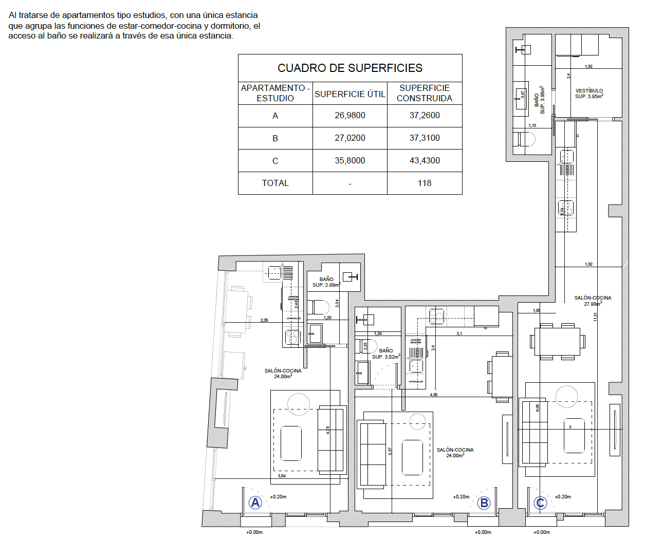
| Superficie construida total | 118 m² |
| Superficie viviendas | 56,20 m² · 56,20 m² · 94,50 m² |
| Precio de adquisición | Desde 90.000 € |
| Alquiler estimado | 750 € – 800 € / mes |
| Rentabilidad bruta estimada | 8,7% – 8,9% |
| Entrega | Inmediata |
¿Por qué esta zona?
La Región de Murcia mantiene un déficit estructural de vivienda. En 2023 se iniciaron 3.011 viviendas nuevas, cuando la necesidad anual estimada supera las 10.000 unidades. En los últimos diez años se han construido las viviendas correspondientes a un solo año de demanda real.
El Barrio del Carmen destaca como una de las zonas con mayor rentabilidad en alquiler de la ciudad, combinando demanda sostenida, servicios consolidados y buena conectividad.
Este desequilibrio entre oferta y demanda sostiene el atractivo del activo a medio y largo plazo.
Esto da contexto macro y eleva la percepción profesional.
Desglose económico por vivienda
Vivienda A
| Concepto | Detalle |
|---|---|
| Precio de adquisición | 95.000 € |
| Alquiler estimado | 775 € / mes |
| Rentabilidad bruta estimada | 8,7% |
| Rentabilidad neta estimada | 7,7% |
| Financiación estimada | Hipoteca 50% |
| Entrada estimada | 59.065 € |
| Escenario conservador | Vacancia puntual y ajuste moderado de alquiler contemplados en el análisis |
| Cashflow estimado (con financiación 50%) | Positivo según escenario base analizado |
| Perfil de inquilino objetivo | Profesionales jóvenes y parejas en zona urbana consolidada |
Vivienda B
| Concepto | Detalle |
|---|---|
| Precio de adquisición | 90.000 € |
| Alquiler estimado | 750 € / mes |
| Rentabilidad bruta estimada | 8,9% |
| Rentabilidad neta estimada | 7,8% |
| Financiación estimada | Hipoteca 50% |
| Entrada estimada | 55.990 € |
| Escenario conservador | Contempla vacancia puntual y posible ajuste moderado del alquiler |
| Cashflow estimado (con financiación 50%) | Positivo según escenario base analizado |
| Perfil de inquilino objetivo | Profesionales jóvenes y parejas en entorno urbano consolidado |
Vivienda C
| Concepto | Detalle |
|---|---|
| Precio de adquisición | 98.000 € |
| Alquiler estimado | 800 € / mes |
| Rentabilidad bruta estimada | 8,7% |
| Rentabilidad neta estimada | 7,7% |
| Financiación estimada | Hipoteca 50% |
| Entrada estimada | 60.910 € |
| Escenario conservador | Incluye vacancia puntual y posible ajuste moderado del alquiler en el análisis |
| Cashflow estimado (con financiación 50%) | Positivo según escenario base analizado |
| Perfil de inquilino objetivo | Profesionales y parejas que buscan vivienda funcional en zona urbana consolidada |
Plano técnico viviendas

Descarga el proyecto 3 viviendas de obra nueva
Análisis de riesgos
Toda inversión inmobiliaria conlleva variables que deben ser analizadas con criterio. En esta operación se han contemplado los siguientes factores:
• Evolución del mercado de alquiler Posibles ajustes en precios si la oferta aumenta o si se produce desaceleración económica.
• Vacancia puntual Periodo sin inquilino entre contratos que puede afectar temporalmente al flujo de caja.
• Condiciones de financiación Variaciones en tipos de interés que puedan impactar en la rentabilidad apalancada.
• Liquidez futura del activo Aunque la zona presenta buena demanda, la velocidad de venta dependerá del contexto de mercado en el momento de salida.
¿Encaja esta oportunidad con tu estrategia de inversión?
Si buscas diversificar en residencial urbano con ticket accesible y rentabilidad estimada superior a productos tradicionales, podemos analizar contigo cuál de las tres unidades se adapta mejor a tu perfil y estructura financiera.
Análisis personalizado sin compromiso
¿Quieres recibir oportunidades de inversión?
Cuéntanos tu objetivo y te proponemos opciones alineadas a tu perfil.
















